Land For Sale Askern . See houses and flats from the top agents in askern and get. Search houses & flats to. browse a range of property to buy in askern with primelocation. a rare opportunity to purchase a building plot with full planning permission for a stylish two bedroom new build. land for sale in highfield road, askern, doncaster, south yorkshire dn6, selling for £180,000 from martin & co doncaster. High street, askern, doncaster, dn6.
from www.ruralscene.co.uk
land for sale in highfield road, askern, doncaster, south yorkshire dn6, selling for £180,000 from martin & co doncaster. Search houses & flats to. High street, askern, doncaster, dn6. a rare opportunity to purchase a building plot with full planning permission for a stylish two bedroom new build. See houses and flats from the top agents in askern and get. browse a range of property to buy in askern with primelocation.
Property for Sale Askern SOUTH YORKSHIRE Rural Scene
Land For Sale Askern Search houses & flats to. browse a range of property to buy in askern with primelocation. a rare opportunity to purchase a building plot with full planning permission for a stylish two bedroom new build. See houses and flats from the top agents in askern and get. Search houses & flats to. High street, askern, doncaster, dn6. land for sale in highfield road, askern, doncaster, south yorkshire dn6, selling for £180,000 from martin & co doncaster.
From www.yopa.co.uk
Property for sale on Hilton Street, Askern, Doncaster Yopa Land For Sale Askern a rare opportunity to purchase a building plot with full planning permission for a stylish two bedroom new build. High street, askern, doncaster, dn6. See houses and flats from the top agents in askern and get. Search houses & flats to. land for sale in highfield road, askern, doncaster, south yorkshire dn6, selling for £180,000 from martin &. Land For Sale Askern.
From www.your-move.co.uk
3 bedroom Mid Terrace House for sale, Queens Road, Askern, DN6 £105,000 Land For Sale Askern See houses and flats from the top agents in askern and get. a rare opportunity to purchase a building plot with full planning permission for a stylish two bedroom new build. Search houses & flats to. land for sale in highfield road, askern, doncaster, south yorkshire dn6, selling for £180,000 from martin & co doncaster. High street, askern,. Land For Sale Askern.
From www.reedsrains.co.uk
3 bedroom Semi Detached House for sale, Marlborough Road, Askern, DN6 Land For Sale Askern See houses and flats from the top agents in askern and get. a rare opportunity to purchase a building plot with full planning permission for a stylish two bedroom new build. land for sale in highfield road, askern, doncaster, south yorkshire dn6, selling for £180,000 from martin & co doncaster. Search houses & flats to. browse a. Land For Sale Askern.
From www.ruralscene.co.uk
Property for Sale Askern SOUTH YORKSHIRE Rural Scene Land For Sale Askern Search houses & flats to. See houses and flats from the top agents in askern and get. browse a range of property to buy in askern with primelocation. land for sale in highfield road, askern, doncaster, south yorkshire dn6, selling for £180,000 from martin & co doncaster. High street, askern, doncaster, dn6. a rare opportunity to purchase. Land For Sale Askern.
From www.zoopla.co.uk
3 bed semidetached house for sale in Selby Road, Askern Doncaster DN6 Land For Sale Askern High street, askern, doncaster, dn6. See houses and flats from the top agents in askern and get. browse a range of property to buy in askern with primelocation. land for sale in highfield road, askern, doncaster, south yorkshire dn6, selling for £180,000 from martin & co doncaster. a rare opportunity to purchase a building plot with full. Land For Sale Askern.
From www.rightmove.co.uk
Land for sale in High Street, Askern, Doncaster, DN6 Land For Sale Askern Search houses & flats to. See houses and flats from the top agents in askern and get. High street, askern, doncaster, dn6. land for sale in highfield road, askern, doncaster, south yorkshire dn6, selling for £180,000 from martin & co doncaster. browse a range of property to buy in askern with primelocation. a rare opportunity to purchase. Land For Sale Askern.
From www.zoopla.co.uk
3 bed terraced house for sale in Queens Road, Askern, Doncaster DN6 Land For Sale Askern Search houses & flats to. High street, askern, doncaster, dn6. See houses and flats from the top agents in askern and get. a rare opportunity to purchase a building plot with full planning permission for a stylish two bedroom new build. land for sale in highfield road, askern, doncaster, south yorkshire dn6, selling for £180,000 from martin &. Land For Sale Askern.
From www.primelocation.com
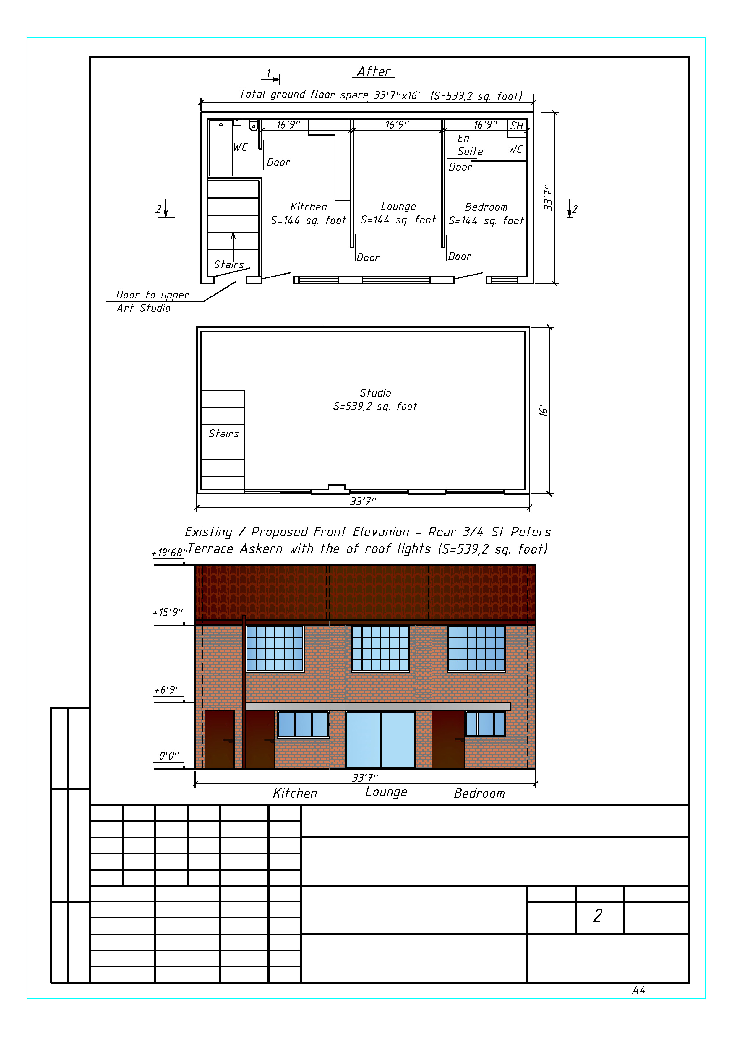
Barn Behind St Peters Terrace, Askern, Doncaster DN6, land for sale Land For Sale Askern land for sale in highfield road, askern, doncaster, south yorkshire dn6, selling for £180,000 from martin & co doncaster. See houses and flats from the top agents in askern and get. High street, askern, doncaster, dn6. Search houses & flats to. browse a range of property to buy in askern with primelocation. a rare opportunity to purchase. Land For Sale Askern.
From www.ruralscene.co.uk
Property for Sale Askern SOUTH YORKSHIRE Rural Scene Land For Sale Askern High street, askern, doncaster, dn6. land for sale in highfield road, askern, doncaster, south yorkshire dn6, selling for £180,000 from martin & co doncaster. Search houses & flats to. See houses and flats from the top agents in askern and get. browse a range of property to buy in askern with primelocation. a rare opportunity to purchase. Land For Sale Askern.
From rmenglish.co.uk
Development Land, Off Highfield Road, Askern, Doncaster Land For Sale Askern land for sale in highfield road, askern, doncaster, south yorkshire dn6, selling for £180,000 from martin & co doncaster. a rare opportunity to purchase a building plot with full planning permission for a stylish two bedroom new build. High street, askern, doncaster, dn6. browse a range of property to buy in askern with primelocation. See houses and. Land For Sale Askern.
From www.reedsrains.co.uk
3 bedroom Semi Detached House for sale, Marlborough Road, Askern, DN6 Land For Sale Askern High street, askern, doncaster, dn6. Search houses & flats to. See houses and flats from the top agents in askern and get. browse a range of property to buy in askern with primelocation. land for sale in highfield road, askern, doncaster, south yorkshire dn6, selling for £180,000 from martin & co doncaster. a rare opportunity to purchase. Land For Sale Askern.
From www.ruralscene.co.uk
Property for Sale Askern SOUTH YORKSHIRE Rural Scene Land For Sale Askern browse a range of property to buy in askern with primelocation. See houses and flats from the top agents in askern and get. land for sale in highfield road, askern, doncaster, south yorkshire dn6, selling for £180,000 from martin & co doncaster. High street, askern, doncaster, dn6. Search houses & flats to. a rare opportunity to purchase. Land For Sale Askern.
From www.ruralscene.co.uk
Property for Sale Askern SOUTH YORKSHIRE Rural Scene Land For Sale Askern land for sale in highfield road, askern, doncaster, south yorkshire dn6, selling for £180,000 from martin & co doncaster. browse a range of property to buy in askern with primelocation. High street, askern, doncaster, dn6. Search houses & flats to. a rare opportunity to purchase a building plot with full planning permission for a stylish two bedroom. Land For Sale Askern.
From www.ruralscene.co.uk
Property for Sale Askern SOUTH YORKSHIRE Rural Scene Land For Sale Askern land for sale in highfield road, askern, doncaster, south yorkshire dn6, selling for £180,000 from martin & co doncaster. a rare opportunity to purchase a building plot with full planning permission for a stylish two bedroom new build. See houses and flats from the top agents in askern and get. High street, askern, doncaster, dn6. browse a. Land For Sale Askern.
From www.onthemarket.com
Park Road, Askern, Doncaster 2 bed terraced house for sale £80,000 Land For Sale Askern Search houses & flats to. High street, askern, doncaster, dn6. land for sale in highfield road, askern, doncaster, south yorkshire dn6, selling for £180,000 from martin & co doncaster. See houses and flats from the top agents in askern and get. browse a range of property to buy in askern with primelocation. a rare opportunity to purchase. Land For Sale Askern.
From www.reedsrains.co.uk
3 bedroom Semi Detached House for sale, Marlborough Road, Askern, DN6 Land For Sale Askern Search houses & flats to. a rare opportunity to purchase a building plot with full planning permission for a stylish two bedroom new build. land for sale in highfield road, askern, doncaster, south yorkshire dn6, selling for £180,000 from martin & co doncaster. browse a range of property to buy in askern with primelocation. High street, askern,. Land For Sale Askern.
From www.onthemarket.com
Theodore Road, Askern, Doncaster 3 bed semidetached house for sale £ Land For Sale Askern a rare opportunity to purchase a building plot with full planning permission for a stylish two bedroom new build. High street, askern, doncaster, dn6. See houses and flats from the top agents in askern and get. land for sale in highfield road, askern, doncaster, south yorkshire dn6, selling for £180,000 from martin & co doncaster. Search houses &. Land For Sale Askern.
From www.rightmove.co.uk
2 bedroom terraced house for sale in Askern Road, Toll Bar, Doncaster, DN5 Land For Sale Askern High street, askern, doncaster, dn6. browse a range of property to buy in askern with primelocation. a rare opportunity to purchase a building plot with full planning permission for a stylish two bedroom new build. Search houses & flats to. land for sale in highfield road, askern, doncaster, south yorkshire dn6, selling for £180,000 from martin &. Land For Sale Askern.